需室内施工图绘制?大学生作业、工装图等,预付50%合作!【乙方信息】
2026-01-05 11:04:48
浏览量:172

王先生
风险提示:投资有风险,合作需谨慎,涉及任何资金、物品等交易慎重考虑!
切勿下载来历不明软件!保护好个人隐私信息和财产安全,谨防受骗!
合作区域:全国
编号:1705493
资源标签:家居建材 /其他
合作概述:
1.提供资源
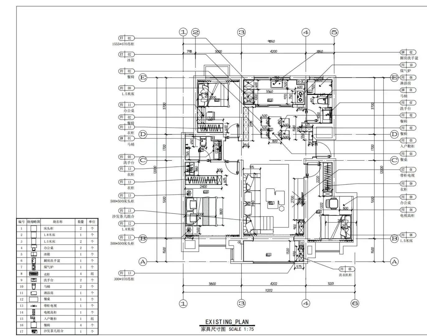
室内施工图设计,工装竣工图,节点大样等
2.优势介绍
完整施工图包含:拆改,平面,地面,天花,水电位置等
3.需求资源
室内施工图代画,大学生CAD作业,家工装竣工图节点图大样图等
4.合作详情
要有户型图,详细门窗尺寸高度等
5.合作费用
预付50%
完成50%
价格看难易程度详谈
资源图片:



下载U客直谈APP立即联系需要跳转至应用宝进行下载

